
SEAWORD HOUSE PROJECT
海を身近に感じる、人生をFeel So Good!にする家
メンズライフスタイルメディア『OCEANS』とのコラボレーションで生まれた、海を身近に感じる平屋の家
家のあらゆる場所に「Feel So Good!」を味わえるアイデアを詰め込みました

『OCEANS』とは?
『OCEANS』は、30~40代の男性に向けたライフスタイルメディア
雑誌『OCEANS』は今年で創刊18年目を迎え、洋服や車といった趣味のモノのみならず、
アウトドア、ウェルネス、食、家族など、近年は幅広いライフスタイルを彩る提案をおこなう
また、この夏からは、「Feel So Good, Isn’t it?(気持ちよくない?)」をかかげ再スタートを切ったばかり
気分よく、居心地よく、そして楽しく過ごすことを至上命題に、引き続き、
『OCEANS』らしいファッションやライフスタイルを提案していく
スペック
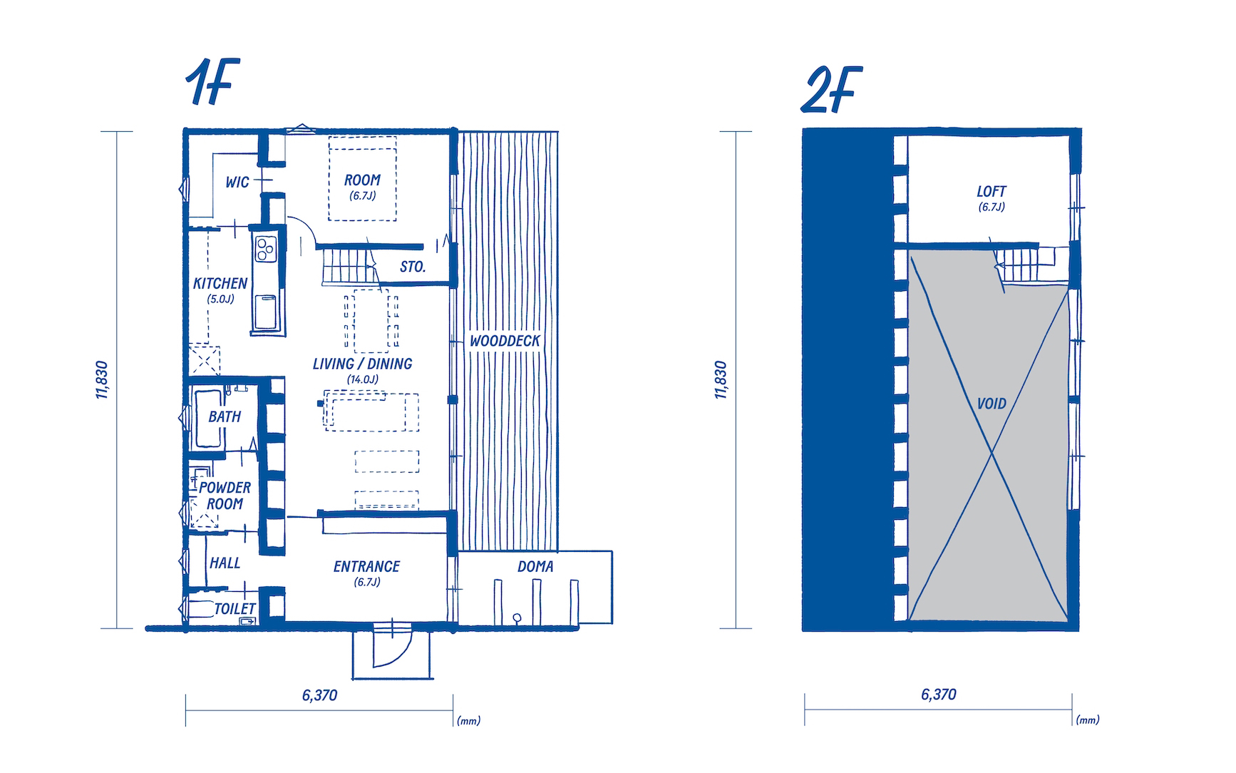
延床面積/90.66㎡
床面積/1F:75.35㎡ 2F:15.31㎡
PLAN / プラン


FUNCTIONAL FRONT YARD / 外観
西海岸に佇む平屋をイメージした、おおらかでぬくもりある外観

LIVELY LIVING ROOM / リビング
雑多がサマになる、壁一面の収納を持ったリビング

BEACH STYLE DECK / ウッドデッキ
中と外がシームレスにつながり、港のように人が集まるウッドデッキ


“FREEDOMA” BOARDING GATE / 玄関
愛着ある道具をラフに掲げて、“好き”に迎えられる玄関
海から上がったら即シャワー的な洗い場もGOOD

BATH & POWDER ROOM / 浴室・洗面脱衣室
スムーズな動線の水回り
外遊びからバスルームに直行できる動線は、嬉しい
エントランスの土間と一続きになった水回りは、アウトドア派の見方

LOFT / ロフト
階段を登ると自分だけのロフト空間
こども部屋にも趣味部屋にも活用できる、ロフト空間
リビングイン階段なので、家族との程よい距離感が保てるのも嬉しい

BEDROOM・WIC / ベッドルーム・ウォークインクローゼット
機能性と心地よさのプライベート空間
1Fの主寝室は、ビッグなウォークインクローゼット付き
普段着に加え、季節外れのアウトドアグッズ収納にも不足なしの大収納
上質でラフな時間が流れる『SEAWORD HOUSE』
西海岸系、サーフ系が好きなお客様には刺さるはず
気になる方は、お気軽にお問い合わせください
無料相談承ります♪
熊本 × 工務店 × 家づくり